
PROJET / CONSTRUCTION METALLIQUE
Hôtel de Ville d'Aigle
Escalier métallique sur plusieurs niveaux avec garde-corps en verre, dans un contexte demandant une bonne lecture des détails, des raccords et des phases d’exécution.


Éléments du projet
Le projet regroupait plusieurs familles d’ouvrages métalliques sur un même site, avec des plans développés selon les zones et les éléments à produire.

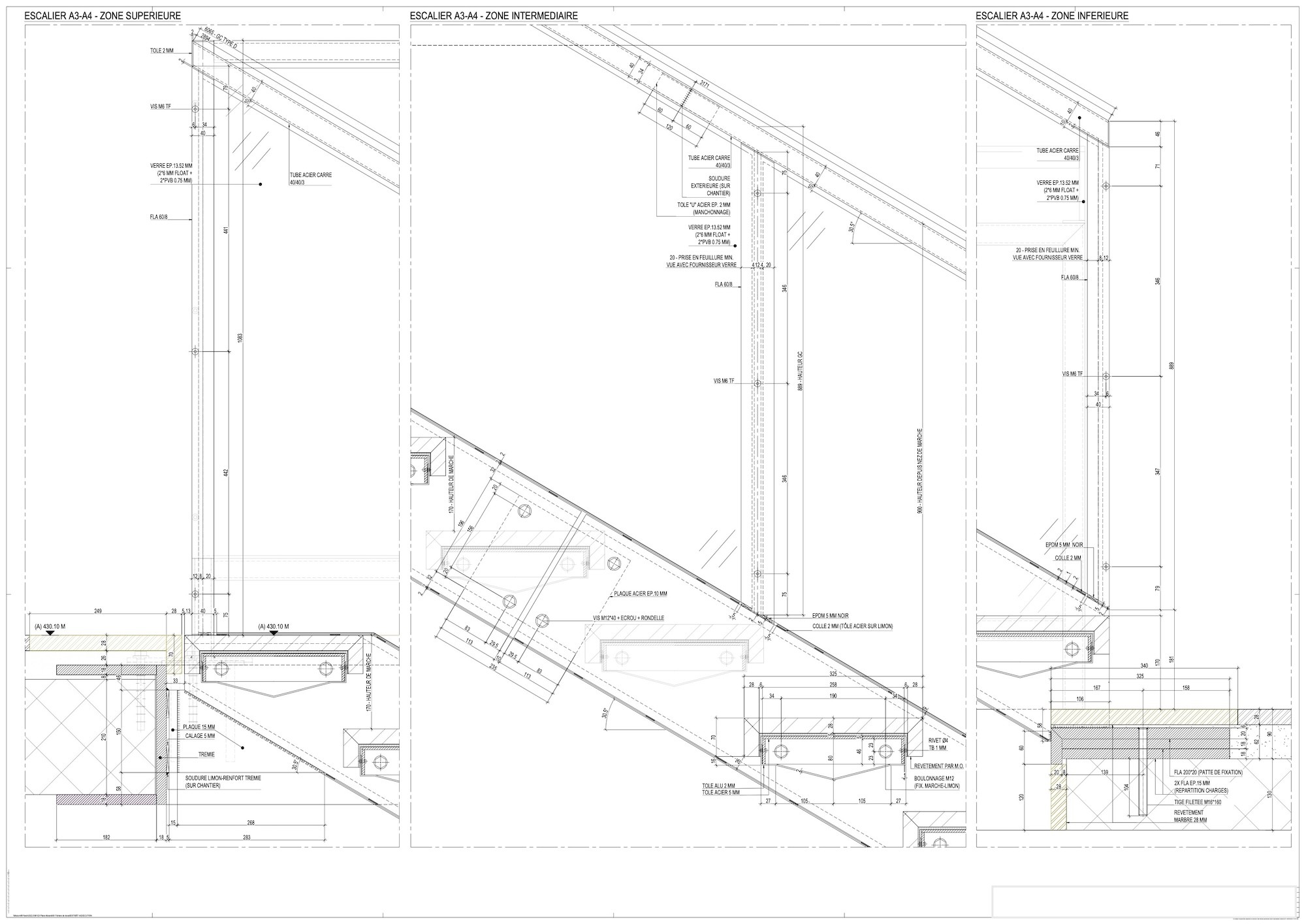
01 / ELEMENT
Escalier métallique
Plans d’exécution de l’escalier avec développement des volées, paliers, limons, appuis et détails nécessaires à la fabrication.
Exemple de plans : élévations, coupes, détails d’assemblage, développement de l’escalier

02 / ELEMENT
Garde-corps vitrés et détails
Développement des garde-corps en verre et des détails de raccord entre serrurerie, vitrage et structure de l’escalier.
Exemple de plans : détails de fixation, raccords, garde-corps vitrés, coupes

03 / ELEMENT
Chantier et résultat final
Photos de chantier et vues du projet terminé, montrant la lecture réelle de l’ouvrage, les détails de pose et le résultat final une fois l’escalier mis en place.
Exemple de vues : chantier, pose, assemblage, vue finale

CAD / BIM / plans modernisés / visualisation 3D
Suisse romande
gili_cad - Support externe en dessin technique, plans modernisés et visualisation 3D